消防車手抬泵全自動提升機構_手抬泵取放架(落地款)技術規格書
消防設備的取放,消防車上用的手抬泵、水帶拖車、電動機器人、逃生氣墊、移動照明燈,器材模塊等60公斤至200公斤設備取放,(用液壓或電機作動力,成本太高,耗電量大,對電瓶負擔會加重, 取放要4個人抬;)我們公司研發的全自動提升機構,以前4個消防戰士才能取放.抬走的器材,用上我們設備1個人就可以輕松取放,拖走。
二.技術參數
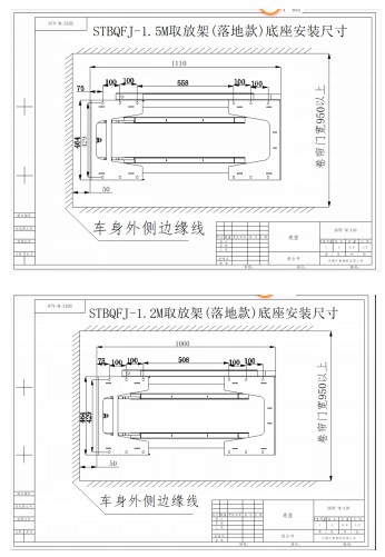
1. 手抬泵取放架(落地款)上下行程 1 米至 1.2 米可調,產品型號:STBQFJ-1.2M;2.手抬泵取放架(落地款)上下行程 1.2 至 1.5 米可調,產品型號:STBQFJ-1.5M;
3.STBQFJ-1.2M 取放架(落地款)外形尺寸≤1060X900X1100mm;
4.STBQFJ-1.5M 取放架(落地款)外形尺寸≤1110X900X1200mm;
5.可以適應不同高度器材箱上平面,在上下行程1米至1.2米可調或上下行程1.2至1.5米可調;
7.取放架軌道采用鋁合金6061材質,提升機構采用鋼板Q235A材質先鍍鋅后噴塑工藝制作而成,整體重量≤150公斤;
8.采用的氣缸,及電磁閥均采用國內知名品牌:亞德客.
9.優點:一人可以操作,不用人抬,設備展開時間10秒至15秒;
10.取放架有應急手動開關、 有帶彈簧線電動按扭開關、有移動式無線遙控開關、三種開關來控制氣路,增強可靠性,提高操作便利性;
11.取放架(落地款)限載≤200公斤。
三.具體實施方式及附圖:
收縮狀態1
展開狀態2(自動水平移岀)
展開狀態3(放平至地面)
展開狀態4(自動脫開拖走設備)
底座安裝尺寸
手抬泵取放架接氣、接電原理圖:
為了提高行車安全性,單獨增加獨立供氣系統,通過四回路保護閥與剎車系統分開,氣壓高低不影響剎車系統。儲氣筒大小只能供梯架一個來回用氣,如要連續使用將車子發動后,再使用) (取氣口接四回路保護閥上的 24 其它輔助用氣)

手抬泵取放架(落地款)裝箱清單





